02 Feb 37 Autumn Gate Street, Pittsboro
Posted at 03:00h
in Chatham Park
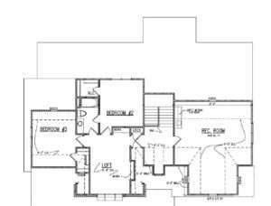
Announcing a new opportunity underway and now available in Pittsboro’s The Vineyards at Chatham Park! 37 Autumn Gate Street will boast a painted brick exterior accented with stylish board and batten vertical siding. This beautiful design offers 4 bedrooms and 3.5 baths in 3,539 sq ft. Features include a 1st floor owner suite, guest suite, and study, a gourmet kitchen, a bookshelf accented loft, plus a spacious bonus room. For sales details, click here!

